Rustico Casale

In vendita
Modena - stradello fiume, 10
380.000 €
Photo 1
Rustico/Casale
Categoria
250
m2
11
Locali
5
Camere
2
Bagni
Descrizione
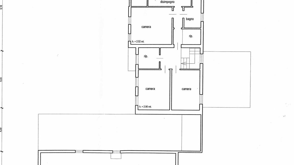
Casale tipico modenese in discrete condizioni di manutenzione sviluppato su due livelli più ricovero attrezzi. Al piano terra, si sviluppa un ampio ingresso che accede alla cucina abitabile, il soggiorno ampio, camera , studio bagno e cantina. Da scala interna si accede al primo livello con cinque camere da letto, altro bagno e ripostiglio. L'immobile è stato parzialmente ristrutturato negli anni 2000 e pur essendo abitabile, necessita di essere risistemato. La posizione geografica è approssimativa nel rispetto della privacy. Ulteriori informazioni presso la nostra agenzia
Caratteristiche principali
Codice:
R120
Città:
Modena
Categoria:
Rustico/Casale
Locali:
11
Camere:
5
Bagni:
2
Mq:
250
Classe energetica:
G
Stato Immobile:
Abitabile
Grado:
Economico
Posizione:
Campagna
Panorama:
Vista Aperta
Orientamento:
Nord Ovest Sud Est
Lati Liberi:
4
Giardino:
Privato
Arredi:
Semi Arredato
Tipo Soggiorno:
Doppio
Tipo Cucina:
Abitabile
Riscaldamento:
Autonomo
Tipo Riscaldam.:
Caldaia
Tipo Impianto:
Radiatori
Fonte Energetica:
Metano
Acqua Calda:
Autonoma
Mappa
Cookie preference